Elected Officials
Courts
Departments
Initiatives
Open Government
About
Login / Register
Home
/
Property & Tax Records
/
Property Records
/
Property & Tax Search
/
Parcel Profile
/
Print View
Search for Another Parcel
Parcel Profile
Historical Card
Sketches
Photos
Tax Map
Taxes
Print View
Print This Page
Address: 425 NIEMEYER RD
Parcel: 47024056000104
Parcel Profile
Address
425 | NIEMEYER | RD
Street Status
UNPAVED
School District
FORT LEBOEUF SCHOOL
Acreage
3.0700
Classification
R
Land Use Code
MULTIPLE DWELLINGS
Legal Description
425 NIEMEYER RD 3.07 AC NET | 3.31 AC GROSS
Square Feet
3240
Topo
ABOVE STREET
Utility
WELL | SEPTIC
Zoning
Please contact your municipal zoning officer
Deed Book
2012
Deed Page
013578
2026 Tax Values
Land Value / Taxable
34,600 / 34,600.00
Building Value / Taxable
144,190 / 144,190.00
Total Value / Taxable
178,790 / 178,790.00
Clean & Green
Inactive
Homestead Status
Active
Farmstead Status
Inactive
Lerta Amount
0
Lerta Expiration Year
0
Residential Data
Card 1
Style
OLD STYLE
Basement
PART
Year Built
1890
Exterior Wall
ALUMINUM/VINYL
Total Living Area
2512
Full Baths
1
Half Baths
0
Fuel Type
GAS
Heating
CENTRAL
Heating System
FORCED AIR
Stories
2.0
Total Bedrooms
4
Total Family Rooms
0
Total Rooms
9
Fireplaces
0
Card 2
Style
OTHER
Basement
NONE
Year Built
1990
Exterior Wall
FRAME
Total Living Area
728
Full Baths
1
Half Baths
0
Fuel Type
GAS
Heating
CENTRAL
Heating System
FORCED AIR
Stories
1.0
Total Bedrooms
1
Total Family Rooms
0
Total Rooms
4
Fireplaces
0
Other Buildings & Yards
Description
Built
Width
Length
Area
METAL SHED
1950
16
16
256
CONCRETE STAVE WITH ROOF
1900
25
40
19625
FOUR SIDE CLOSED WD POLE BLDG
2014
24
28
672
ONE SIDE OPEN WD POLE BLDG
2014
12
24
288
FOUR SIDE OPEN MTL POLE BLDG
2019
0
0
768
Sales History
Sale Date
Type
Price
Book / Page
Other Info
5/25/2012
LAND & BUILDING
0
2012 / 013578
QUIT CLAIM DEED
4/5/2010
LAND & BUILDING
80000
2010 / 007267
SPECIAL WARRANTY DEED
11/18/2004
LAND & BUILDING
0
1190 / 2257
QUIT CLAIM DEED
7/24/2003
LAND & BUILDING
0
1040 / 1390
WARRANTY/SURVIVORSHIP DEED
8/20/1997
LAND & BUILDING
41500
514 / 2047
Parcel Sketches
Residential Card 1
A
MAIN
1064 square feet
B
OFP OPEN FRAME PORCH
64 square feet
C
1S FR ONE STORY FRAME
384 square feet
D
WDDCK WOOD DECKS
392 square feet
E
FR GR FRAME GARAGE
1066 square feet
F
WDDCK WOOD DECKS
105 square feet
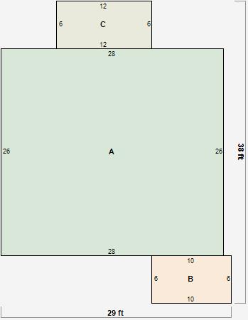
Residential Card 2
A
MAIN
728 square feet
B
OFP OPEN FRAME PORCH
60 square feet
C
WDDCK WOOD DECKS
72 square feet
Parcel Images
Please note:
this tab is for informational purposes only and may not show all delinquencies, see the Taxes tab for more accurate delinquent taxes due.