Elected Officials
Courts
Departments
Initiatives
Open Government
About
Login / Register
Home
/
Property & Tax Records
/
Property Records
/
Property & Tax Search
/
Parcel Profile
/
Print View
Search for Another Parcel
Parcel Profile
Historical Card
Sketches
Photos
Tax Map
Taxes
Print View
Print This Page
Address: 1986 OLD STATE RD
Parcel: 47028065001000
Parcel Profile
Address
1986 | OLD STATE | RD
Street Status
PAVED
School District
FORT LEBOEUF SCHOOL
Acreage
0.8804
Classification
R
Land Use Code
SINGLE FAMILY
Legal Description
1986 OLD STATE RD 130 X 295
Square Feet
1768
Topo
LEVEL
Utility
WELL | SEPTIC
Zoning
Please contact your municipal zoning officer
Deed Book
2022
Deed Page
008926
2025 Tax Values
Land Value / Taxable
29,000 / 29,000.00
Building Value / Taxable
37,970 / 37,970.00
Total Value / Taxable
66,970 / 66,970.00
Clean & Green
Inactive
Homestead Status
Active
Farmstead Status
Inactive
Lerta Amount
0
Lerta Expiration Year
0
Residential Data
Card 1
Style
OLD STYLE
Basement
CRAWL
Year Built
1896
Exterior Wall
BRICK
Total Living Area
1768
Full Baths
1
Half Baths
1
Fuel Type
PROPANE
Heating
CENTRAL
Heating System
FORCED AIR
Stories
2.0
Total Bedrooms
3
Total Family Rooms
1
Total Rooms
9
Fireplaces
0
Other Buildings & Yards
Description
Built
Width
Length
Area
FRAME OR CB DETACHED GARAGE
1970
24
22
528
Sales History
Sale Date
Type
Price
Book / Page
Other Info
4/26/2022
LAND & BUILDING
160000
2022 / 008926
SPECIAL WARRANTY DEED
9/5/2012
LAND & BUILDING
111000
2012 / 024308
SPECIAL WARRANTY DEED
10/23/1981
0
1437 / 0305
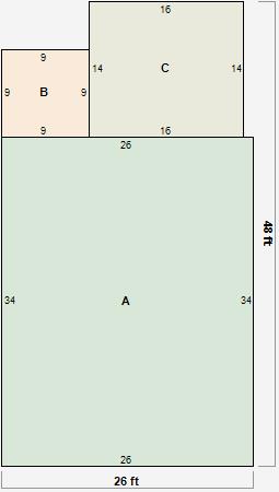
Parcel Sketches
Residential Card 1
A
MAIN
884 square feet
B
OFP OPEN FRAME PORCH
81 square feet
C
WDDCK WOOD DECKS
224 square feet
Parcel Images