Elected Officials
Courts
Departments
Initiatives
Open Government
About
Login / Register
Home
/
Property & Tax Records
/
Property Records
/
Property & Tax Search
/
Parcel Profile
/
Print View
Search for Another Parcel
Parcel Profile
Historical Card
Sketches
Photos
Tax Map
Taxes
Print View
Print This Page
Address: 14345 MAIN ST
Parcel: 48001002000500
Parcel Profile
Address
14345 | MAIN | ST
Street Status
PAVED
School District
WATTSBURG SCHOOL
Acreage
0.2503
Classification
R
Land Use Code
SINGLE FAMILY
Legal Description
14345 MAIN ST 79.75 X 362
Square Feet
1200
Topo
LEVEL
Utility
GAS | WELL | SEPTIC
Zoning
Please contact your municipal zoning officer
Deed Book
2018
Deed Page
001277
2026 Tax Values
Land Value / Taxable
22,100 / 22,100.00
Building Value / Taxable
27,460 / 27,460.00
Total Value / Taxable
49,560 / 49,560.00
Clean & Green
Inactive
Homestead Status
Inactive
Farmstead Status
Inactive
Lerta Amount
0
Lerta Expiration Year
0
Residential Data
Card 1
Style
OLD STYLE
Basement
PART
Year Built
1900
Exterior Wall
ALUMINUM/VINYL
Total Living Area
1200
Full Baths
1
Half Baths
0
Fuel Type
GAS
Heating
CENTRAL
Heating System
FORCED AIR
Stories
2.0
Total Bedrooms
3
Total Family Rooms
0
Total Rooms
6
Fireplaces
0
Other Buildings & Yards
No OBY Data Found
Sales History
Sale Date
Type
Price
Book / Page
Other Info
1/19/2018
LAND & BUILDING
16710
2018 / 001277
SPECIAL WARRANTY DEED
11/10/2011
LAND & BUILDING
20000
2011 / 027129
SPECIAL WARRANTY DEED
6/23/1992
0
0218 / 0587
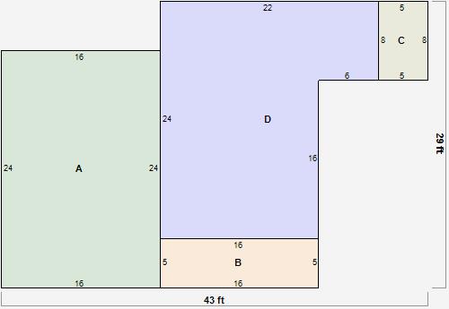
Parcel Sketches
Residential Card 1
A
MAIN
384 square feet
B
OFP OPEN FRAME PORCH
80 square feet
C
WDDCK WOOD DECKS
40 square feet
D
1S FR ONE STORY FRAME
432 square feet
Parcel Images
Please note:
this tab is for informational purposes only and may not show all delinquencies, see the Taxes tab for more accurate delinquent taxes due.