Elected Officials
Courts
Departments
Initiatives
Open Government
About
Login / Register
Home
/
Property & Tax Records
/
Property Records
/
Property & Tax Search
/
Parcel Profile
/
Print View
Search for Another Parcel
Parcel Profile
Historical Card
Sketches
Photos
Tax Map
Taxes
Print View
Print This Page
Address: 14363 65 MAIN ST
Parcel: 48001002000900
Parcel Profile
Address
14363 | 65 | MAIN | ST
Street Status
PAVED
School District
WATTSBURG SCHOOL
Acreage
0.5802
Classification
R
Land Use Code
TWO FAMILY
Legal Description
14363 65 MAIN ST 82.5X358.5 IR
Square Feet
2464
Topo
LEVEL
Utility
GAS | WELL | SEPTIC
Zoning
Please contact your municipal zoning officer
Deed Book
1425
Deed Page
1938
2026 Tax Values
Land Value / Taxable
25,500 / 25,500.00
Building Value / Taxable
34,400 / 34,400.00
Total Value / Taxable
59,900 / 59,900.00
Clean & Green
Inactive
Homestead Status
Active
Farmstead Status
Inactive
Lerta Amount
0
Lerta Expiration Year
0
Residential Data
Card 1
Style
OLD STYLE
Basement
PART
Year Built
1900
Exterior Wall
COMPOSITION
Total Living Area
2464
Full Baths
2
Half Baths
0
Fuel Type
GAS
Heating
CENTRAL
Heating System
FORCED AIR
Stories
2.0
Total Bedrooms
3
Total Family Rooms
0
Total Rooms
11
Fireplaces
0
Other Buildings & Yards
Description
Built
Width
Length
Area
FOUR SIDE CLOSED MTL POLE BLDG
2002
15
22
330
FRAME UTILITY SHED
2002
8
15
120
Sales History
Sale Date
Type
Price
Book / Page
Other Info
6/22/2007
LAND & BUILDING
0
1425 / 1938
DEED
9/30/1996
LAND & BUILDING
50000
464 / 309
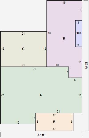
Parcel Sketches
Residential Card 1
A
MAIN
827 square feet
B
OFP OPEN FRAME PORCH
136 square feet
C
1S FR ONE STORY FRAME
336 square feet
D
OFP OPEN FRAME PORCH
36 square feet
E
1S FR ONE STORY FRAME
474 square feet
Parcel Images
Please note:
this tab is for informational purposes only and may not show all delinquencies, see the Taxes tab for more accurate delinquent taxes due.