Elected Officials
Courts
Departments
Initiatives
Open Government
About
Login / Register
Home
/
Property & Tax Records
/
Property Records
/
Property & Tax Search
/
Parcel Profile
/
Print View
Search for Another Parcel
Parcel Profile
Historical Card
Sketches
Photos
Tax Map
Taxes
Print View
Print This Page
Address: 14369 CHURCH ST
Parcel: 48001002003700
Parcel Profile
Address
14369 | CHURCH | ST
Street Status
PAVED
School District
WATTSBURG SCHOOL
Acreage
0.2121
Classification
R
Land Use Code
SINGLE FAMILY
Legal Description
14369 CHURCH ST 66 X 140
Square Feet
432
Topo
LEVEL
Utility
GAS | WELL | SEPTIC
Zoning
Please contact your municipal zoning officer
Deed Book
2022
Deed Page
006607
2026 Tax Values
Land Value / Taxable
21,700 / 21,700.00
Building Value / Taxable
16,800 / 16,800.00
Total Value / Taxable
38,500 / 38,500.00
Clean & Green
Inactive
Homestead Status
Inactive
Farmstead Status
Inactive
Lerta Amount
0
Lerta Expiration Year
0
Residential Data
Card 1
Style
BUNGALOW
Basement
NONE
Year Built
1930
Exterior Wall
BLOCK
Total Living Area
432
Full Baths
1
Half Baths
0
Fuel Type
GAS
Heating
CENTRAL
Heating System
FORCED AIR
Stories
1.0
Total Bedrooms
1
Total Family Rooms
0
Total Rooms
3
Fireplaces
0
Other Buildings & Yards
No OBY Data Found
Sales History
Sale Date
Type
Price
Book / Page
Other Info
3/29/2022
LAND & BUILDING
28000
2022 / 006607
SPECIAL WARRANTY DEED
4/27/2006
LAND & BUILDING
17000
1322 / 2162
WARRANTY/SURVIVORSHIP DEED
3/9/1992
0
0198 / 2283
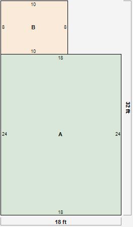
Parcel Sketches
Residential Card 1
A
MAIN
432 square feet
B
FR UT FRAME UTILITY BUILDING
80 square feet
Parcel Images
Please note:
this tab is for informational purposes only and may not show all delinquencies, see the Taxes tab for more accurate delinquent taxes due.