Elected Officials
Courts
Departments
Initiatives
Open Government
About
Login / Register
Home
/
Property & Tax Records
/
Property Records
/
Property & Tax Search
/
Parcel Profile
/
Print View
Search for Another Parcel
Parcel Profile
Historical Card
Sketches
Photos
Tax Map
Taxes
Print View
Print This Page
Address: 14401 MAIN ST
Parcel: 48001007000200
Parcel Profile
Address
14401 | MAIN | ST
Street Status
PAVED
School District
WATTSBURG SCHOOL
Acreage
0.5000
Classification
R
Land Use Code
SINGLE FAMILY
Legal Description
14401 MAIN ST 82.5 X 264
Square Feet
1977
Topo
LEVEL
Utility
GAS | WELL | SEPTIC
Zoning
Please contact your municipal zoning officer
Deed Book
2021
Deed Page
034117
2026 Tax Values
Land Value / Taxable
24,700 / 24,700.00
Building Value / Taxable
64,660 / 64,660.00
Total Value / Taxable
89,360 / 89,360.00
Clean & Green
Inactive
Homestead Status
Active
Farmstead Status
Inactive
Lerta Amount
0
Lerta Expiration Year
0
Residential Data
Card 1
Style
OLD STYLE
Basement
FULL
Year Built
1900
Exterior Wall
ALUMINUM/VINYL
Total Living Area
1977
Full Baths
1
Half Baths
0
Fuel Type
GAS
Heating
CENTRAL
Heating System
FORCED AIR
Stories
2.0
Total Bedrooms
3
Total Family Rooms
0
Total Rooms
7
Fireplaces
0
Other Buildings & Yards
Description
Built
Width
Length
Area
FRAME UTILITY SHED
2002
10
10
100
Sales History
Sale Date
Type
Price
Book / Page
Other Info
12/28/2021
LAND & BUILDING
0
2021 / 034117
SPECIAL WARRANTY DEED
7/1/2002
LAND & BUILDING
82000
0896 / 0301
DEED
8/9/1999
LAND & BUILDING
66450
654 / 1633
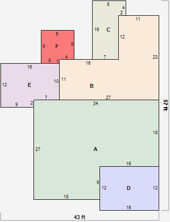
Parcel Sketches
Residential Card 1
A
MAIN
774 square feet
B
1S FR ONE STORY FRAME
429 square feet
C
MA_PT CONC/MAS PATIO
120 square feet
D
EFP ENCL FRAME PORCH
192 square feet
E
WDDCK WOOD DECKS
178 square feet
F
WDDCK WOOD DECKS
77 square feet
Parcel Images