Elected Officials
Courts
Departments
Initiatives
Open Government
About
Login / Register
Home
/
Property & Tax Records
/
Property Records
/
Property & Tax Search
/
Parcel Profile
/
Print View
Search for Another Parcel
Parcel Profile
Historical Card
Sketches
Photos
Tax Map
Taxes
Print View
Print This Page
Address: 14336 LOWVILLE ST
Parcel: 48002011000700
Parcel Profile
Address
14336 | LOWVILLE | ST
Street Status
PAVED
School District
WATTSBURG SCHOOL
Acreage
0.4276
Classification
R
Land Use Code
SINGLE FAMILY
Legal Description
14336 LOWVILLE ST 167.1X132 IR
Square Feet
1720
Topo
LEVEL
Utility
GAS | WELL | SEPTIC
Zoning
Please contact your municipal zoning officer
Deed Book
0791
Deed Page
0309
2026 Tax Values
Land Value / Taxable
23,900 / 23,900.00
Building Value / Taxable
52,480 / 52,480.00
Total Value / Taxable
76,380 / 76,380.00
Clean & Green
Inactive
Homestead Status
Inactive
Farmstead Status
Inactive
Lerta Amount
0
Lerta Expiration Year
0
Residential Data
Card 1
Style
OLD STYLE
Basement
PART
Year Built
1900
Exterior Wall
ALUMINUM/VINYL
Total Living Area
1720
Full Baths
1
Half Baths
0
Fuel Type
GAS
Heating
CENTRAL
Heating System
FORCED AIR
Stories
1.5
Total Bedrooms
4
Total Family Rooms
0
Total Rooms
6
Fireplaces
0
Other Buildings & Yards
No OBY Data Found
Sales History
Sale Date
Type
Price
Book / Page
Other Info
7/10/2001
LAND & BUILDING
52300
0791 / 0309
7/10/2001
LAND & BUILDING
52300
0791 / 0309
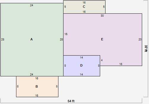
Parcel Sketches
Residential Card 1
A
MAIN
672 square feet
B
OFP OPEN FRAME PORCH
128 square feet
C
EFP ENCL FRAME PORCH
80 square feet
D
OFP OPEN FRAME PORCH
112 square feet
E
1S FR ONE STORY FRAME
544 square feet
Parcel Images
Please note:
this tab is for informational purposes only and may not show all delinquencies, see the Taxes tab for more accurate delinquent taxes due.