Elected Officials
Courts
Departments
Initiatives
Open Government
About
Login / Register
Home
/
Property & Tax Records
/
Property Records
/
Property & Tax Search
/
Parcel Profile
/
Print View
Search for Another Parcel
Parcel Profile
Historical Card
Sketches
Photos
Tax Map
Taxes
Print View
Print This Page
Address: 16930 HARE CREEK RD
Parcel: 49006020000600
Parcel Profile
Address
16930 | HARE CREEK | RD
Street Status
UNPAVED
School District
CORRY AREA SCHOOL
Acreage
88.1900
Classification
F
Land Use Code
80 ACRES OR MORE
Legal Description
16930 HARE CREEK RD 88.193 AC
Square Feet
1879
Topo
LEVEL
Utility
NONE | WELL | SEPTIC
Zoning
Please contact your municipal zoning officer
Deed Book
1455
Deed Page
1519
2026 Tax Values
Land Value / Taxable
74,000 / 74,000.00
Building Value / Taxable
40,400 / 40,400.00
Total Value / Taxable
114,400 / 114,400.00
Clean & Green
Inactive
Homestead Status
Active
Farmstead Status
Inactive
Lerta Amount
0
Lerta Expiration Year
0
Residential Data
Card 1
Style
OLD STYLE
Basement
PART
Year Built
1920
Exterior Wall
COMPOSITION
Total Living Area
1879
Full Baths
1
Half Baths
0
Fuel Type
COAL/WOOD
Heating
NONE
Heating System
FORCED AIR
Stories
1.5
Total Bedrooms
3
Total Family Rooms
0
Total Rooms
7
Fireplaces
1
Other Buildings & Yards
Description
Built
Width
Length
Area
FLAT BARN
1930
48
52
2496
ATTACHED CB MILK HOUSE
1930
12
14
168
FRAME UTILITY SHED
1930
16
10
160
SINGLE WIDE MOBILE HOME
1958
10
50
500
SKIRTING
1974
0
0
120
SCREENED PORCH
1980
12
40
480
CARPORT
1992
20
18
360
Sales History
Sale Date
Type
Price
Book / Page
Other Info
10/24/2007
LAND & BUILDING
0
1455 / 1519
QUIT CLAIM DEED
5/19/2006
LAND & BUILDING
0
1329 / 0466
DEED
5/19/2006
LAND & BUILDING
0
1329 / 0463
1/16/1987
0
1666 / 0082
6/16/1977
0
1267 / 420
9/4/1946
0
0477 / 0470
Parcel Sketches
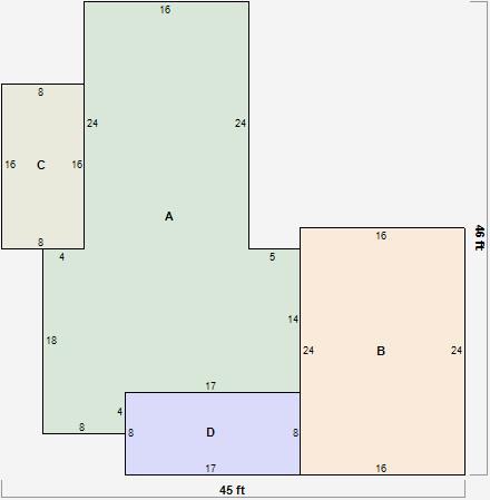
Residential Card 1
A
MAIN
766 square feet
B
1S FR ONE STORY FRAME AT FN ATTIC-FINISHED
384 square feet
C
EFP ENCL FRAME PORCH
128 square feet
D
OFP OPEN FRAME PORCH
136 square feet
Parcel Images
Please note:
this tab is for informational purposes only and may not show all delinquencies, see the Taxes tab for more accurate delinquent taxes due.