Elected Officials
Courts
Departments
Initiatives
Open Government
About
Login / Register
Home
/
Property & Tax Records
/
Property Records
/
Property & Tax Search
/
Parcel Profile
/
Print View
Search for Another Parcel
Parcel Profile
Historical Card
Sketches
Photos
Tax Map
Taxes
Print View
Print This Page
Address: 16850 ROUTE 89
Parcel: 49010027000300
Parcel Profile
Address
16850 | ROUTE 89
Street Status
PAVED
School District
CORRY AREA SCHOOL
Acreage
1.2200
Classification
R
Land Use Code
SINGLE FAMILY
Legal Description
16850 ROUTE 89 1.22 AC CAL
Square Feet
2026
Topo
LEVEL
Utility
WELL | SEPTIC
Zoning
Please contact your municipal zoning officer
Deed Book
0277
Deed Page
0419
2025 Tax Values
Land Value / Taxable
12,800 / 12,800.00
Building Value / Taxable
39,220 / 39,220.00
Total Value / Taxable
52,020 / 52,020.00
Clean & Green
Inactive
Homestead Status
Active
Farmstead Status
Inactive
Lerta Amount
0
Lerta Expiration Year
0
Residential Data
Card 1
Style
OLD STYLE
Basement
FULL
Year Built
1900
Exterior Wall
FRAME
Total Living Area
2026
Full Baths
1
Half Baths
0
Fuel Type
PROPANE
Heating
CENTRAL
Heating System
FORCED AIR
Stories
2.0
Total Bedrooms
3
Total Family Rooms
0
Total Rooms
9
Fireplaces
0
Other Buildings & Yards
Description
Built
Width
Length
Area
FRAME UTILITY SHED
2003
12
16
192
1S LEAN TO
2024
0
0
192
Sales History
Sale Date
Type
Price
Book / Page
Other Info
6/29/1993
0
0277 / 0419
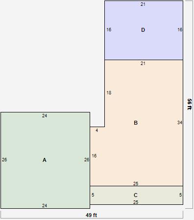
Parcel Sketches
Residential Card 1
A
MAIN
624 square feet
B
UNFIN BSMT BASEMENT UNFINISHED 1S FR ONE STORY FRAME
778 square feet
C
EFP ENCL FRAME PORCH
125 square feet
D
FR GR FRAME GARAGE
336 square feet
Parcel Images