Address: 17980 82 HARE CREEK RD   Parcel: 49013020002000
Parcel Profile
Address17980 | 82 | HARE CREEK | RD
Street StatusPAVED
School DistrictCORRY AREA SCHOOL
Acreage52.0000
ClassificationF
Land Use Code20 - 79.99 ACRES
Legal Description17980 82 HARE CREEK RD | 52 AC
Square Feet2157
TopoLEVEL
UtilityWELL | SEPTIC
ZoningPlease contact your municipal zoning officer
Deed Book0293
Deed Page0182
2025 Tax Values
Land Value / Taxable45,400 / 45,400.00
Building Value / Taxable62,140 / 62,140.00
Total Value / Taxable107,540 / 107,540.00
Clean & GreenInactive
Homestead StatusActive
Farmstead StatusInactive
Lerta Amount0
Lerta Expiration Year0
Residential Data
Card 1
     StyleOLD STYLE
     BasementFULL
     Year Built1900
     Exterior WallFRAME
     Total Living Area2157
     Full Baths1
     Half Baths0
     Fuel TypeOIL
     HeatingCENTRAL
     Heating SystemFORCED AIR
     Stories2.0
     Total Bedrooms4
     Total Family Rooms1
     Total Rooms7
     Fireplaces1
Other Buildings & Yards
DescriptionBuiltWidthLengthArea
 FRAME UTILITY SHED 1920 12 24 288
 FLAT BARN ADDITION 1900 14 30 420
 FRAME UTILITY SHED 1920 24 30 720
Sales History
Sale DateTypePriceBook / PageOther Info
9/23/1993 00293 / 0182 



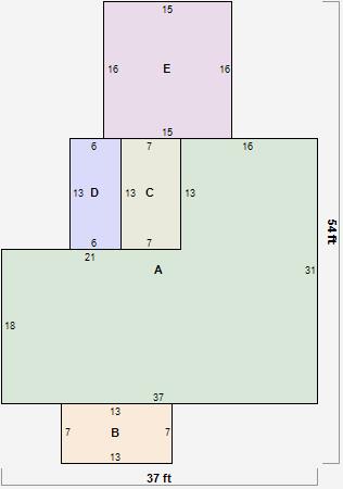
Parcel Sketches

Residential Card 1

Residential Card 1
AMAIN874 square feet
B OFP OPEN FRAME PORCH 91 square feet
C 1S FR ONE STORY FRAME 91 square feet
D 1S FR ONE STORY FRAME 78 square feet
E 1S FR ONE STORY FRAME 240 square feet

Parcel Images

parcel photoparcel photoparcel photoparcel photo