Elected Officials
Courts
Departments
Initiatives
Open Government
About
Login / Register
Home
/
Property & Tax Records
/
Property Records
/
Property & Tax Search
/
Parcel Profile
/
Print View
Search for Another Parcel
Parcel Profile
Historical Card
Sketches
Photos
Tax Map
Taxes
Print View
Print This Page
Address: 12948 ROUTE 6
Parcel: 49017043003200
Parcel Profile
Address
12948 | ROUTE 6
Street Status
PAVED
School District
CORRY AREA SCHOOL
Acreage
5.4800
Classification
R
Land Use Code
SINGLE FAMILY
Legal Description
12948 ROUTE 6 5.48 AC
Square Feet
1352
Topo
LEVEL
Utility
WELL | SEPTIC
Zoning
Please contact your municipal zoning officer
Deed Book
2019
Deed Page
000338
2026 Tax Values
Land Value / Taxable
18,100 / 18,100.00
Building Value / Taxable
50,230 / 50,230.00
Total Value / Taxable
68,330 / 68,330.00
Clean & Green
Inactive
Homestead Status
Active
Farmstead Status
Inactive
Lerta Amount
0
Lerta Expiration Year
0
Residential Data
Card 1
Style
CAPE
Basement
PART
Year Built
1930
Exterior Wall
ALUMINUM/VINYL
Total Living Area
1352
Full Baths
1
Half Baths
0
Fuel Type
GAS
Heating
CENTRAL
Heating System
FORCED AIR
Stories
1.0
Total Bedrooms
3
Total Family Rooms
0
Total Rooms
6
Fireplaces
1
Other Buildings & Yards
Description
Built
Width
Length
Area
FRAME OR CB DETACHED GARAGE
2010
24
31
744
Sales History
Sale Date
Type
Price
Book / Page
Other Info
1/7/2019
LAND & BUILDING
95000
2019 / 000338
WARRANTY/SURVIVORSHIP DEED
8/5/1994
0
0348 / 1160
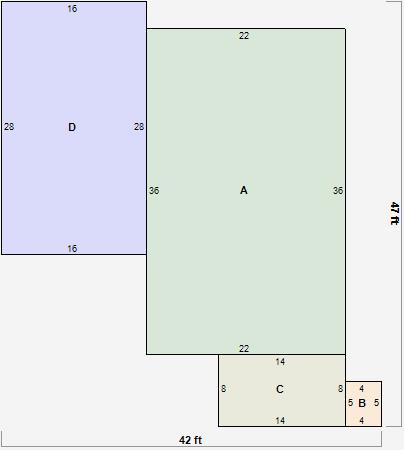
Parcel Sketches
Residential Card 1
A
MAIN
792 square feet
B
MA STOOP/TERR MAS STOOP
20 square feet
C
1S FR ONE STORY FRAME
112 square feet
D
1S FR ONE STORY FRAME
448 square feet
Parcel Images
Please note:
this tab is for informational purposes only and may not show all delinquencies, see the Taxes tab for more accurate delinquent taxes due.