Elected Officials
Courts
Departments
Initiatives
Open Government
About
Login / Register
Home
/
Property & Tax Records
/
Property Records
/
Property & Tax Search
/
Parcel Profile
/
Print View
Search for Another Parcel
Parcel Profile
Historical Card
Sketches
Photos
Tax Map
Taxes
Print View
Print This Page
Address: 18788 CONELWAY RD
Parcel: 49017043003500
Parcel Profile
Address
18788 | CONELWAY | RD
Street Status
PRIVATE | LANDLOCKED
School District
CORRY AREA SCHOOL
Acreage
1.0700
Classification
R
Land Use Code
SINGLE FAMILY
Legal Description
18788 CONELWAY 1.07 AC | REF S19-166
Square Feet
672
Topo
LEVEL
Utility
WELL | SEPTIC
Zoning
Please contact your municipal zoning officer
Deed Book
2020
Deed Page
013937
2026 Tax Values
Land Value / Taxable
10,000 / 10,000.00
Building Value / Taxable
50,000 / 50,000.00
Total Value / Taxable
60,000 / 60,000.00
Clean & Green
Inactive
Homestead Status
Inactive
Farmstead Status
Inactive
Lerta Amount
0
Lerta Expiration Year
0
Residential Data
Card 1
Style
BUNGALOW
Basement
FULL
Year Built
1935
Exterior Wall
ALUMINUM/VINYL
Total Living Area
672
Full Baths
1
Half Baths
0
Fuel Type
GAS
Heating
CENTRAL
Heating System
FORCED AIR
Stories
1.0
Total Bedrooms
3
Total Family Rooms
0
Total Rooms
5
Fireplaces
0
Other Buildings & Yards
Description
Built
Width
Length
Area
FRAME OR CB DETACHED GARAGE
1935
16
20
320
Sales History
Sale Date
Type
Price
Book / Page
Other Info
7/24/2020
LAND & BUILDING
2000
2020 / 013937
SPECIAL WARRANTY DEED
10/19/2015
LAND & BUILDING
75000
2015 / 023138
WARRANTY/SURVIVORSHIP DEED
10/19/2006
LAND & BUILDING
66000
1369 / 2084
SPECIAL WARRANTY DEED
8/28/2001
LAND & BUILDING
48000
804 / 1993
8/28/2001
0
0804 / 0993
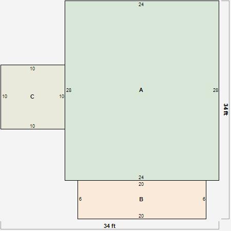
Parcel Sketches
Residential Card 1
A
MAIN
672 square feet
B
EFP ENCL FRAME PORCH
120 square feet
C
WDDCK WOOD DECKS
100 square feet
Parcel Images