Elected Officials
Courts
Departments
Initiatives
Open Government
About
Login / Register
Home
/
Property & Tax Records
/
Property Records
/
Property & Tax Search
/
Parcel Profile
/
Print View
Search for Another Parcel
Parcel Profile
Historical Card
Sketches
Photos
Tax Map
Taxes
Print View
Print This Page
Address: 1713 BIRD DR
Parcel: 50001009001300
Parcel Profile
Address
1713 | BIRD | DR
Street Status
PAVED
School District
IROQUOIS SCHOOL
Acreage
0.1726
Classification
R
Land Use Code
SINGLE FAMILY
Legal Description
1713 BIRD DR 47 X 159.89
Square Feet
768
Topo
LEVEL
Utility
ALL PUBLIC
Zoning
Please contact your municipal zoning officer
Deed Book
1409
Deed Page
1619
2026 Tax Values
Land Value / Taxable
16,200 / 16,200.00
Building Value / Taxable
17,600 / 17,600.00
Total Value / Taxable
33,800 / 33,800.00
Clean & Green
Inactive
Homestead Status
Inactive
Farmstead Status
Inactive
Lerta Amount
0
Lerta Expiration Year
0
Residential Data
Card 1
Style
BUNGALOW
Basement
FULL
Year Built
1920
Exterior Wall
ALUMINUM/VINYL
Total Living Area
768
Full Baths
1
Half Baths
0
Fuel Type
GAS
Heating
CENTRAL
Heating System
FORCED AIR
Stories
1.0
Total Bedrooms
2
Total Family Rooms
0
Total Rooms
4
Fireplaces
1
Other Buildings & Yards
No OBY Data Found
Sales History
Sale Date
Type
Price
Book / Page
Other Info
4/18/2007
LAND & BUILDING
18000
1409 / 1619
DEED
7/22/2004
LAND & BUILDING
0
1156 / 1600
SHERIFF'S DED
1/3/2002
LAND & BUILDING
25500
840 / 1703
11/11/1999
LAND & BUILDING
20000
673 / 2185
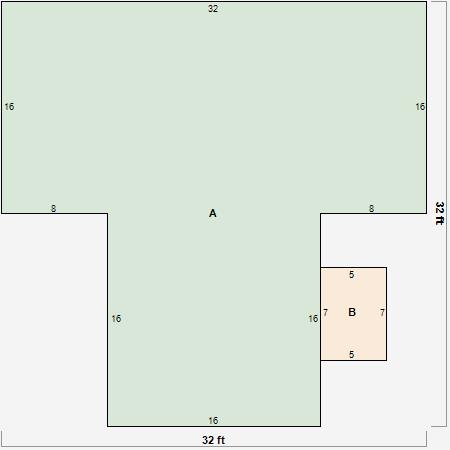
Parcel Sketches
Residential Card 1
A
MAIN
768 square feet
B
MA STOOP/TERR MAS STOOP
35 square feet
Parcel Images
Please note:
this tab is for informational purposes only and may not show all delinquencies, see the Taxes tab for more accurate delinquent taxes due.