Elected Officials
Courts
Departments
Initiatives
Open Government
About
Login / Register
Home
/
Property & Tax Records
/
Property Records
/
Property & Tax Search
/
Parcel Profile
/
Print View
Search for Another Parcel
Parcel Profile
Historical Card
Sketches
Photos
Tax Map
Taxes
Print View
Print This Page
Address: 2714 BUFFALO RD
Parcel: 50001010000600
Parcel Profile
Address
2714 | BUFFALO | RD
Street Status
PAVED
School District
IROQUOIS SCHOOL
Acreage
0.2057
Classification
R
Land Use Code
THREE FAMILY
Legal Description
2714 BUFFALO RD 56X159.99
Square Feet
2306
Topo
LEVEL
Utility
ALL PUBLIC
Zoning
Please contact your municipal zoning officer
Deed Book
0379
Deed Page
2270
2026 Tax Values
Land Value / Taxable
15,100 / 15,100.00
Building Value / Taxable
48,550 / 48,550.00
Total Value / Taxable
63,650 / 63,650.00
Clean & Green
Inactive
Homestead Status
Inactive
Farmstead Status
Inactive
Lerta Amount
0
Lerta Expiration Year
0
Residential Data
Card 1
Style
OLD STYLE
Basement
FULL
Year Built
1890
Exterior Wall
ALUMINUM/VINYL
Total Living Area
2306
Full Baths
3
Half Baths
0
Fuel Type
GAS
Heating
CENTRAL
Heating System
FORCED AIR
Stories
2.0
Total Bedrooms
4
Total Family Rooms
0
Total Rooms
10
Fireplaces
0
Other Buildings & Yards
No OBY Data Found
Sales History
Sale Date
Type
Price
Book / Page
Other Info
4/17/1995
LAND & BUILDING
42000
0379 / 2270
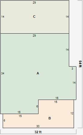
Parcel Sketches
Residential Card 1
A
MAIN
950 square feet
B
OFP OPEN FRAME PORCH
270 square feet
C
UNFIN BSMT BASEMENT UNFINISHED 1S FR ONE STORY FRAME AT UN ATTIC-UNFINISHED
406 square feet
Parcel Images