Elected Officials
Courts
Departments
Initiatives
Open Government
About
Login / Register
Home
/
Property & Tax Records
/
Property Records
/
Property & Tax Search
/
Parcel Profile
/
Print View
Search for Another Parcel
Parcel Profile
Historical Card
Sketches
Photos
Tax Map
Taxes
Print View
Print This Page
Address: 1912 CENTER ST
Parcel: 50001013000400
Parcel Profile
Address
1912 | CENTER | ST
Street Status
PAVED
School District
IROQUOIS SCHOOL
Acreage
0.5000
Classification
R
Land Use Code
SINGLE FAMILY
Legal Description
1912 CENTER ST 82.5 X 264
Square Feet
2007
Topo
LEVEL
Utility
ALL PUBLIC
Zoning
Please contact your municipal zoning officer
Deed Book
0178
Deed Page
1196
2025 Tax Values
Land Value / Taxable
21,900 / 21,900.00
Building Value / Taxable
63,900 / 63,900.00
Total Value / Taxable
85,800 / 85,800.00
Clean & Green
Inactive
Homestead Status
Active
Farmstead Status
Inactive
Lerta Amount
0
Lerta Expiration Year
0
Residential Data
Card 1
Style
OLD STYLE
Basement
PART
Year Built
1910
Exterior Wall
ALUMINUM/VINYL
Total Living Area
2007
Full Baths
2
Half Baths
0
Fuel Type
GAS
Heating
CENTRAL
Heating System
FORCED AIR
Stories
2.0
Total Bedrooms
4
Total Family Rooms
0
Total Rooms
7
Fireplaces
0
Other Buildings & Yards
Description
Built
Width
Length
Area
FRAME OR CB DETACHED GARAGE
1950
22
36
792
FRAME UTILITY SHED
1990
7
16
112
Sales History
Sale Date
Type
Price
Book / Page
Other Info
9/30/1991
0
0178 / 1196
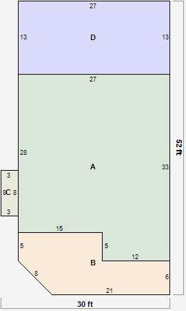
Parcel Sketches
Residential Card 1
A
MAIN
816 square feet
B
EFP ENCL FRAME PORCH
219 square feet
C
UNFIN BSMT BASEMENT UNFINISHED FRBAY FRAME BAY
24 square feet
D
1S FR ONE STORY FRAME
351 square feet
Parcel Images