Elected Officials
Courts
Departments
Initiatives
Open Government
About
Login / Register
Home
/
Property & Tax Records
/
Property Records
/
Property & Tax Search
/
Parcel Profile
/
Print View
Search for Another Parcel
Parcel Profile
Historical Card
Sketches
Photos
Tax Map
Taxes
Print View
Print This Page
Address: 3630 SOUTH ST
Parcel: 50002017000900
Parcel Profile
Address
3630 | SOUTH | ST
Street Status
PAVED | SIDEWALK
School District
IROQUOIS SCHOOL
Acreage
0.0728
Classification
R
Land Use Code
SINGLE FAMILY
Legal Description
3630 SOUTH ST 40X79.25
Square Feet
1174
Topo
LEVEL
Utility
ALL PUBLIC
Zoning
Please contact your municipal zoning officer
Deed Book
0239
Deed Page
1680
2026 Tax Values
Land Value / Taxable
13,800 / 13,800.00
Building Value / Taxable
69,090 / 69,090.00
Total Value / Taxable
82,890 / 82,890.00
Clean & Green
Inactive
Homestead Status
Active
Farmstead Status
Inactive
Lerta Amount
0
Lerta Expiration Year
0
Residential Data
Card 1
Style
OLD STYLE
Basement
FULL
Year Built
1905
Exterior Wall
ALUMINUM/VINYL
Total Living Area
1174
Full Baths
1
Half Baths
0
Fuel Type
GAS
Heating
CENTRAL
Heating System
FORCED AIR
Stories
2.0
Total Bedrooms
3
Total Family Rooms
0
Total Rooms
6
Fireplaces
1
Other Buildings & Yards
Description
Built
Width
Length
Area
FRAME UTILITY SHED
2014
6
8
48
Sales History
Sale Date
Type
Price
Book / Page
Other Info
11/12/1992
0
0239 / 1680
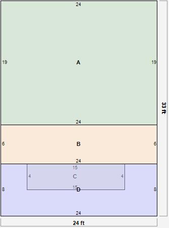
Parcel Sketches
Residential Card 1
A
MAIN
456 square feet
B
UNFIN BSMT BASEMENT UNFINISHED 1S FR ONE STORY FRAME AT FN ATTIC-FINISHED
144 square feet
C
OFP OPEN FRAME PORCH 1S FR ONE STORY FRAME
60 square feet
D
OFP OPEN FRAME PORCH
192 square feet
Parcel Images
Please note:
this tab is for informational purposes only and may not show all delinquencies, see the Taxes tab for more accurate delinquent taxes due.