Elected Officials
Courts
Departments
Initiatives
Open Government
About
Login / Register
Home
/
Property & Tax Records
/
Property Records
/
Property & Tax Search
/
Parcel Profile
/
Print View
Search for Another Parcel
Parcel Profile
Historical Card
Sketches
Photos
Tax Map
Taxes
Print View
Print This Page
Address: 2021 WATER ST
Parcel: 50002017001700
Parcel Profile
Address
2021 | WATER | ST
Street Status
PAVED | SIDEWALK
School District
IROQUOIS SCHOOL
Acreage
0.0794
Classification
R
Land Use Code
SINGLE FAMILY
Legal Description
2021 WATER ST 52.25 X 66.19
Square Feet
1402
Topo
LEVEL
Utility
ALL PUBLIC
Zoning
Please contact your municipal zoning officer
Deed Book
2021
Deed Page
003286
2026 Tax Values
Land Value / Taxable
12,700 / 12,700.00
Building Value / Taxable
47,000 / 47,000.00
Total Value / Taxable
59,700 / 59,700.00
Clean & Green
Inactive
Homestead Status
Inactive
Farmstead Status
Inactive
Lerta Amount
0
Lerta Expiration Year
0
Residential Data
Card 1
Style
OLD STYLE
Basement
FULL
Year Built
1920
Exterior Wall
COMPOSITION
Total Living Area
1402
Full Baths
1
Half Baths
0
Fuel Type
GAS
Heating
CENTRAL
Heating System
FORCED AIR
Stories
2.0
Total Bedrooms
3
Total Family Rooms
0
Total Rooms
7
Fireplaces
0
Other Buildings & Yards
Description
Built
Width
Length
Area
FRAME OR CB DETACHED GARAGE
1935
12
20
240
Sales History
Sale Date
Type
Price
Book / Page
Other Info
2/11/2021
LAND & BUILDING
33500
2021 / 003286
SPECIAL WARRANTY DEED
12/7/1993
0
0307 / 2165
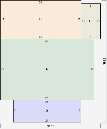
Parcel Sketches
Residential Card 1
A
MAIN
551 square feet
B
1S FR ONE STORY FRAME
300 square feet
C
EFP ENCL FRAME PORCH
66 square feet
D
EFP ENCL FRAME PORCH
147 square feet
Parcel Images
Please note:
this tab is for informational purposes only and may not show all delinquencies, see the Taxes tab for more accurate delinquent taxes due.