Elected Officials
Courts
Departments
Initiatives
Open Government
About
Login / Register
Home
/
Property & Tax Records
/
Property Records
/
Property & Tax Search
/
Parcel Profile
/
Print View
Search for Another Parcel
Parcel Profile
Historical Card
Sketches
Photos
Tax Map
Taxes
Print View
Print This Page
Address: 2026 MARKET ST
Parcel: 50002019000500
Parcel Profile
Address
2026 | MARKET | ST
Street Status
PAVED | SIDEWALK
School District
IROQUOIS SCHOOL
Acreage
0.0632
Classification
R
Land Use Code
TWO FAMILY
Legal Description
2026 28 30 MARKET ST 41.72X 66
Square Feet
1645
Topo
LEVEL
Utility
ALL PUBLIC
Zoning
Please contact your municipal zoning officer
Deed Book
2021
Deed Page
034299
2026 Tax Values
Land Value / Taxable
13,300 / 13,300.00
Building Value / Taxable
44,700 / 44,700.00
Total Value / Taxable
58,000 / 58,000.00
Clean & Green
Inactive
Homestead Status
Inactive
Farmstead Status
Inactive
Lerta Amount
0
Lerta Expiration Year
0
Residential Data
Card 1
Style
OLD STYLE
Basement
FULL
Year Built
1916
Exterior Wall
COMPOSITION
Total Living Area
1645
Full Baths
2
Half Baths
0
Fuel Type
GAS
Heating
CENTRAL
Heating System
FORCED AIR
Stories
1.5
Total Bedrooms
4
Total Family Rooms
0
Total Rooms
10
Fireplaces
0
Other Buildings & Yards
No OBY Data Found
Sales History
Sale Date
Type
Price
Book / Page
Other Info
12/30/2021
LAND & BUILDING
79000
2021 / 034299
SPECIAL WARRANTY DEED
10/27/1999
LAND & BUILDING
34000
0670 / 1043
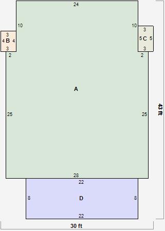
Parcel Sketches
Residential Card 1
A
MAIN
940 square feet
B
OFP OPEN FRAME PORCH
12 square feet
C
OFP OPEN FRAME PORCH
15 square feet
D
OFP OPEN FRAME PORCH
176 square feet
Parcel Images
Please note:
this tab is for informational purposes only and may not show all delinquencies, see the Taxes tab for more accurate delinquent taxes due.