Elected Officials
Courts
Departments
Initiatives
Open Government
About
Login / Register
Home
/
Property & Tax Records
/
Property Records
/
Property & Tax Search
/
Parcel Profile
/
Print View
Search for Another Parcel
Parcel Profile
Historical Card
Sketches
Photos
Tax Map
Taxes
Print View
Print This Page
Address: 2057 CENTER ST
Parcel: 50002033000900
Parcel Profile
Address
2057 | CENTER | ST
Street Status
PAVED | SIDEWALK
School District
IROQUOIS SCHOOL
Acreage
0.1420
Classification
R
Land Use Code
SINGLE FAMILY
Legal Description
2057 CENTER ST LOT A 60.10 X 103
Square Feet
1064
Topo
LEVEL
Utility
ALL PUBLIC
Zoning
Please contact your municipal zoning officer
Deed Book
2021
Deed Page
024946
2026 Tax Values
Land Value / Taxable
15,700 / 15,700.00
Building Value / Taxable
57,570 / 57,570.00
Total Value / Taxable
73,270 / 73,270.00
Clean & Green
Inactive
Homestead Status
Active
Farmstead Status
Inactive
Lerta Amount
0
Lerta Expiration Year
0
Residential Data
Card 1
Style
BUNGALOW
Basement
CRAWL
Year Built
1930
Exterior Wall
ALUMINUM/VINYL
Total Living Area
1064
Full Baths
1
Half Baths
0
Fuel Type
GAS
Heating
CENTRAL
Heating System
FORCED AIR
Stories
1.0
Total Bedrooms
3
Total Family Rooms
0
Total Rooms
6
Fireplaces
0
Other Buildings & Yards
Description
Built
Width
Length
Area
FRAME OR CB DETACHED GARAGE
1991
24
30
720
Sales History
Sale Date
Type
Price
Book / Page
Other Info
9/17/2021
LAND & BUILDING
128750
2021 / 024946
SPECIAL WARRANTY DEED
12/18/1996
LAND & BUILDING
61000
0476 / 1105
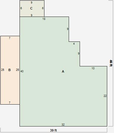
Parcel Sketches
Residential Card 1
A
MAIN
1064 square feet
B
OFP OPEN FRAME PORCH
175 square feet
C
EFP ENCL FRAME PORCH
54 square feet
Parcel Images
Please note:
this tab is for informational purposes only and may not show all delinquencies, see the Taxes tab for more accurate delinquent taxes due.