Elected Officials
Courts
Departments
Initiatives
Open Government
About
Login / Register
Home
/
Property & Tax Records
/
Property Records
/
Property & Tax Search
/
Parcel Profile
/
Print View
Search for Another Parcel
Parcel Profile
Historical Card
Sketches
Photos
Tax Map
Taxes
Print View
Print This Page
Address: 3611 SOUTH ST
Parcel: 50002035000300
Parcel Profile
Address
3611 | SOUTH | ST
Street Status
PAVED | SIDEWALK
School District
IROQUOIS SCHOOL
Acreage
0.0909
Classification
R
Land Use Code
SINGLE FAMILY
Legal Description
3611 SOUTH ST 33X120 PT L 96
Square Feet
756
Topo
LEVEL
Utility
ALL PUBLIC
Zoning
Please contact your municipal zoning officer
Deed Book
0845
Deed Page
0913
2026 Tax Values
Land Value / Taxable
14,800 / 14,800.00
Building Value / Taxable
45,060 / 45,060.00
Total Value / Taxable
59,860 / 59,860.00
Clean & Green
Inactive
Homestead Status
Active
Farmstead Status
Inactive
Lerta Amount
0
Lerta Expiration Year
0
Residential Data
Card 1
Style
BUNGALOW
Basement
FULL
Year Built
1920
Exterior Wall
ALUMINUM/VINYL
Total Living Area
756
Full Baths
2
Half Baths
0
Fuel Type
GAS
Heating
CENTRAL A/C
Heating System
FORCED AIR
Stories
1.5
Total Bedrooms
3
Total Family Rooms
0
Total Rooms
5
Fireplaces
1
Other Buildings & Yards
Description
Built
Width
Length
Area
FRAME OR CB DETACHED GARAGE
1920
15
26
390
Sales History
Sale Date
Type
Price
Book / Page
Other Info
1/18/2002
LAND & BUILDING
57000
0845 / 0913
7/16/1996
LAND & BUILDING
50500
450 / 1782
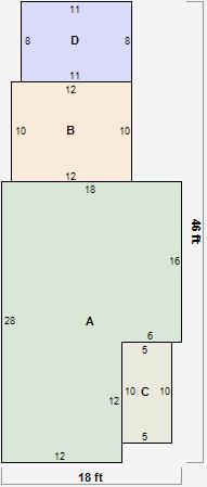
Parcel Sketches
Residential Card 1
A
MAIN
432 square feet
B
EFP ENCL FRAME PORCH
120 square feet
C
OFP OPEN FRAME PORCH
50 square feet
D
OFP OPEN FRAME PORCH
88 square feet
Parcel Images
Please note:
this tab is for informational purposes only and may not show all delinquencies, see the Taxes tab for more accurate delinquent taxes due.