Elected Officials
Courts
Departments
Initiatives
Open Government
About
Login / Register
Home
/
Property & Tax Records
/
Property Records
/
Property & Tax Search
/
Parcel Profile
/
Print View
Search for Another Parcel
Parcel Profile
Historical Card
Sketches
Photos
Tax Map
Taxes
Print View
Print This Page
Address: 2415 STATION RD
Parcel: 50002041004200
Parcel Profile
Address
2415 | STATION | RD
Street Status
PAVED | SIDEWALK
School District
IROQUOIS SCHOOL
Acreage
0.1286
Classification
R
Land Use Code
SINGLE FAMILY
Legal Description
2415 STATION RD LOT 27 44.8 X 125
Square Feet
980
Topo
LEVEL
Utility
ALL PUBLIC
Zoning
Please contact your municipal zoning officer
Deed Book
1120
Deed Page
0350
2026 Tax Values
Land Value / Taxable
15,400 / 15,400.00
Building Value / Taxable
51,020 / 51,020.00
Total Value / Taxable
66,420 / 66,420.00
Clean & Green
Inactive
Homestead Status
Active
Farmstead Status
Inactive
Lerta Amount
0
Lerta Expiration Year
0
Residential Data
Card 1
Style
CAPE
Basement
FULL
Year Built
1930
Exterior Wall
FRAME
Total Living Area
980
Full Baths
1
Half Baths
0
Fuel Type
GAS
Heating
CENTRAL A/C
Heating System
FORCED AIR
Stories
1.0
Total Bedrooms
2
Total Family Rooms
0
Total Rooms
6
Fireplaces
0
Other Buildings & Yards
Description
Built
Width
Length
Area
FRAME OR CB DETACHED GARAGE
1950
16
32
512
Sales History
Sale Date
Type
Price
Book / Page
Other Info
5/23/1974
0
1120 / 0350
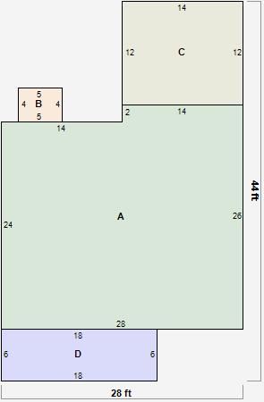
Parcel Sketches
Residential Card 1
A
MAIN
700 square feet
B
EFP ENCL FRAME PORCH
20 square feet
C
EFP ENCL FRAME PORCH
168 square feet
D
OFP OPEN FRAME PORCH
108 square feet
Parcel Images
Please note:
this tab is for informational purposes only and may not show all delinquencies, see the Taxes tab for more accurate delinquent taxes due.