Elected Officials
Courts
Departments
Initiatives
Open Government
About
Login / Register
Home
/
Property & Tax Records
/
Property Records
/
Property & Tax Search
/
Parcel Profile
/
Print View
Search for Another Parcel
Parcel Profile
Historical Card
Sketches
Photos
Tax Map
Taxes
Print View
Print This Page
Address: 3002 EDISON AVE
Parcel: 50003023001700
Parcel Profile
Address
3002 | EDISON | AVE
Street Status
PAVED | SIDEWALK
School District
IROQUOIS SCHOOL
Acreage
0.1287
Classification
R
Land Use Code
SINGLE FAMILY
Legal Description
3002 EDISON AVE 48.25X120
Square Feet
1309
Topo
LEVEL
Utility
ALL PUBLIC
Zoning
Please contact your municipal zoning officer
Deed Book
0684
Deed Page
0672
2026 Tax Values
Land Value / Taxable
15,400 / 15,400.00
Building Value / Taxable
54,170 / 54,170.00
Total Value / Taxable
69,570 / 69,570.00
Clean & Green
Inactive
Homestead Status
Active
Farmstead Status
Inactive
Lerta Amount
0
Lerta Expiration Year
0
Residential Data
Card 1
Style
CAPE
Basement
FULL
Year Built
1928
Exterior Wall
ALUMINUM/VINYL
Total Living Area
1309
Full Baths
2
Half Baths
0
Fuel Type
GAS
Heating
CENTRAL
Heating System
FORCED AIR
Stories
1.0
Total Bedrooms
3
Total Family Rooms
0
Total Rooms
6
Fireplaces
0
Other Buildings & Yards
Description
Built
Width
Length
Area
FRAME OR CB DETACHED GARAGE
1930
18
18
324
Sales History
Sale Date
Type
Price
Book / Page
Other Info
1/21/2000
LAND & BUILDING
50000
0684 / 0672
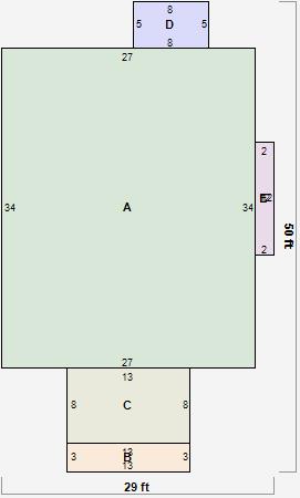
Parcel Sketches
Residential Card 1
A
MAIN
918 square feet
B
WDDCK WOOD DECKS
39 square feet
C
EFP ENCL FRAME PORCH
104 square feet
D
EFP ENCL FRAME PORCH
40 square feet
E
FRBAY FRAME BAY
24 square feet
Parcel Images
Please note:
this tab is for informational purposes only and may not show all delinquencies, see the Taxes tab for more accurate delinquent taxes due.