Elected Officials
Courts
Departments
Initiatives
Open Government
About
Login / Register
Home
/
Property & Tax Records
/
Property Records
/
Property & Tax Search
/
Parcel Profile
/
Print View
Search for Another Parcel
Parcel Profile
Historical Card
Sketches
Photos
Tax Map
Taxes
Print View
Print This Page
Address: 2109 EASTERN AVE
Parcel: 50003023003100
Parcel Profile
Address
2109 | EASTERN | AVE
Street Status
PAVED | SIDEWALK
School District
IROQUOIS SCHOOL
Acreage
0.1102
Classification
R
Land Use Code
TWO FAMILY
Legal Description
2109 EASTERN AVE 40X120
Square Feet
2085
Topo
LEVEL
Utility
ALL PUBLIC
Zoning
Please contact your municipal zoning officer
Deed Book
0641
Deed Page
1732
2026 Tax Values
Land Value / Taxable
15,100 / 15,100.00
Building Value / Taxable
54,900 / 54,900.00
Total Value / Taxable
70,000 / 70,000.00
Clean & Green
Inactive
Homestead Status
Inactive
Farmstead Status
Inactive
Lerta Amount
0
Lerta Expiration Year
0
Residential Data
Card 1
Style
OLD STYLE
Basement
FULL
Year Built
1920
Exterior Wall
ALUMINUM/VINYL
Total Living Area
2085
Full Baths
2
Half Baths
0
Fuel Type
GAS
Heating
CENTRAL
Heating System
FORCED AIR
Stories
2.0
Total Bedrooms
5
Total Family Rooms
1
Total Rooms
11
Fireplaces
0
Other Buildings & Yards
Description
Built
Width
Length
Area
FRAME UTILITY SHED
1990
15
31
465
FRAME UTILITY SHED
1930
9
18
162
FRAME UTILITY SHED
1990
9
12
108
Sales History
Sale Date
Type
Price
Book / Page
Other Info
6/8/1999
LAND & BUILDING
53500
0641 / 1732
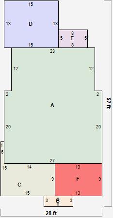
Parcel Sketches
Residential Card 1
A
MAIN
816 square feet
B
OFP OPEN FRAME PORCH
24 square feet
C
UNFIN BSMT BASEMENT UNFINISHED 1S FR ONE STORY FRAME
141 square feet
D
1S FR ONE STORY FRAME
195 square feet
E
EFP ENCL FRAME PORCH
40 square feet
F
1S FR ONE STORY FRAME
117 square feet
Parcel Images
Please note:
this tab is for informational purposes only and may not show all delinquencies, see the Taxes tab for more accurate delinquent taxes due.