Elected Officials
Courts
Departments
Initiatives
Open Government
About
Login / Register
Home
/
Property & Tax Records
/
Property Records
/
Property & Tax Search
/
Parcel Profile
/
Print View
Search for Another Parcel
Parcel Profile
Historical Card
Sketches
Photos
Tax Map
Taxes
Print View
Print This Page
Address: 2106 UNION AVE
Parcel: 50003025001000
Parcel Profile
Address
2106 | UNION | AVE
Street Status
PAVED | SIDEWALK
School District
IROQUOIS SCHOOL
Acreage
0.1198
Classification
E
Land Use Code
EXEMPT SERVICE CONNECTED (VETERANS)
Legal Description
2106 UNION AVE 40 X 130.95
Square Feet
1428
Topo
LEVEL
Utility
ALL PUBLIC
Zoning
Please contact your municipal zoning officer
Deed Book
2015
Deed Page
014581
2026 Tax Values
Land Value / Taxable
15,300 / 15,300.00
Building Value / Taxable
75,760 / 75,760.00
Total Value / Taxable
91,060 / 91,060.00
Clean & Green
Inactive
Homestead Status
Inactive
Farmstead Status
Inactive
Lerta Amount
0
Lerta Expiration Year
0
Residential Data
Card 1
Style
OLD STYLE
Basement
FULL
Year Built
1930
Exterior Wall
MASONRY & FRAME
Total Living Area
1428
Full Baths
1
Half Baths
1
Fuel Type
GAS
Heating
CENTRAL
Heating System
FORCED AIR
Stories
2.0
Total Bedrooms
3
Total Family Rooms
0
Total Rooms
6
Fireplaces
0
Other Buildings & Yards
No OBY Data Found
Sales History
Sale Date
Type
Price
Book / Page
Other Info
7/10/2015
LAND & BUILDING
95000
2015 / 014581
SPECIAL WARRANTY DEED
4/11/2005
LAND & BUILDING
92000
1224 / 1079
DEED
7/18/2003
LAND & BUILDING
0
1037 / 1655
QUIT CLAIM DEED
6/27/1997
LAND & BUILDING
69400
506 / 144
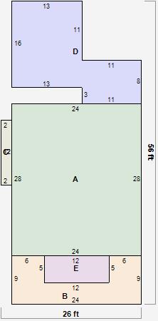
Parcel Sketches
Residential Card 1
A
MAIN
672 square feet
B
OMP OPEN MASONRY PORCH
156 square feet
C
FRBAY FRAME BAY
24 square feet
D
WDDCK WOOD DECKS
296 square feet
E
OMP OPEN MASONRY PORCH 1S FR ONE STORY FRAME
60 square feet
Parcel Images
Please note:
this tab is for informational purposes only and may not show all delinquencies, see the Taxes tab for more accurate delinquent taxes due.