Elected Officials
Courts
Departments
Initiatives
Open Government
About
Login / Register
Home
/
Property & Tax Records
/
Property Records
/
Property & Tax Search
/
Parcel Profile
/
Print View
Search for Another Parcel
Parcel Profile
Historical Card
Sketches
Photos
Tax Map
Taxes
Print View
Print This Page
Address: 2114 UNION AVE
Parcel: 50003025001100
Parcel Profile
Address
2114 | UNION | AVE
Street Status
PAVED | SIDEWALK
School District
IROQUOIS SCHOOL
Acreage
0.1818
Classification
R
Land Use Code
SINGLE FAMILY
Legal Description
2114 UNION AVE LTS 12 13 60 X 133.09
Square Feet
1584
Topo
LEVEL
Utility
ALL PUBLIC
Zoning
Please contact your municipal zoning officer
Deed Book
2023
Deed Page
011073
2026 Tax Values
Land Value / Taxable
16,400 / 16,400.00
Building Value / Taxable
66,700 / 66,700.00
Total Value / Taxable
83,100 / 83,100.00
Clean & Green
Inactive
Homestead Status
Active
Farmstead Status
Inactive
Lerta Amount
0
Lerta Expiration Year
0
Residential Data
Card 1
Style
OLD STYLE
Basement
FULL
Year Built
1916
Exterior Wall
MASONRY & FRAME
Total Living Area
1584
Full Baths
1
Half Baths
0
Fuel Type
GAS
Heating
CENTRAL
Heating System
HOT WATER
Stories
2.0
Total Bedrooms
3
Total Family Rooms
0
Total Rooms
6
Fireplaces
0
Other Buildings & Yards
Description
Built
Width
Length
Area
FRAME OR CB DETACHED GARAGE
1930
10
28
280
Sales History
Sale Date
Type
Price
Book / Page
Other Info
7/11/2023
LAND & BUILDING
0
2023 / 011073
QUIT CLAIM DEED
8/24/1999
0
0657 / 2085
10/9/1970
0
1031 / 0379
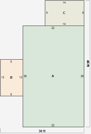
Parcel Sketches
Residential Card 1
A
MAIN
792 square feet
B
OMP OPEN MASONRY PORCH
104 square feet
C
EFP ENCL FRAME PORCH
126 square feet
Parcel Images
Please note:
this tab is for informational purposes only and may not show all delinquencies, see the Taxes tab for more accurate delinquent taxes due.