Elected Officials
Courts
Departments
Initiatives
Open Government
About
Login / Register
Home
/
Property & Tax Records
/
Property Records
/
Property & Tax Search
/
Parcel Profile
/
Print View
Search for Another Parcel
Parcel Profile
Historical Card
Sketches
Photos
Tax Map
Taxes
Print View
Print This Page
Address: 2219 TAGGERT ST
Parcel: 50003029002200
Parcel Profile
Address
2219 | TAGGERT | ST
Street Status
PAVED | SIDEWALK
School District
IROQUOIS SCHOOL
Acreage
0.2204
Classification
R
Land Use Code
SINGLE FAMILY
Legal Description
2219 TAGGERT ST 80.5X120
Square Feet
1258
Topo
LEVEL
Utility
ALL PUBLIC
Zoning
Please contact your municipal zoning officer
Deed Book
0518
Deed Page
0451
2026 Tax Values
Land Value / Taxable
17,000 / 17,000.00
Building Value / Taxable
60,450 / 60,450.00
Total Value / Taxable
77,450 / 77,450.00
Clean & Green
Inactive
Homestead Status
Active
Farmstead Status
Inactive
Lerta Amount
0
Lerta Expiration Year
0
Residential Data
Card 1
Style
OLD STYLE
Basement
FULL
Year Built
1920
Exterior Wall
ALUMINUM/VINYL
Total Living Area
1258
Full Baths
1
Half Baths
0
Fuel Type
GAS
Heating
CENTRAL A/C
Heating System
FORCED AIR
Stories
2.0
Total Bedrooms
3
Total Family Rooms
0
Total Rooms
6
Fireplaces
0
Other Buildings & Yards
Description
Built
Width
Length
Area
FRAME OR CB DETACHED GARAGE
1960
22
22
484
Sales History
Sale Date
Type
Price
Book / Page
Other Info
9/10/1997
LAND & BUILDING
71900
0518 / 0451
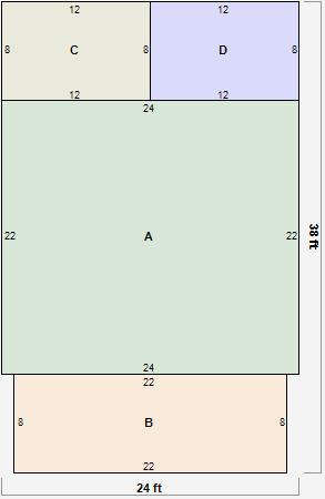
Parcel Sketches
Residential Card 1
A
MAIN
528 square feet
B
UNFIN BSMT BASEMENT UNFINISHED EFP ENCL FRAME PORCH
176 square feet
C
1S FR ONE STORY FRAME
96 square feet
D
EFP ENCL FRAME PORCH
96 square feet
Parcel Images
Please note:
this tab is for informational purposes only and may not show all delinquencies, see the Taxes tab for more accurate delinquent taxes due.