Elected Officials
Courts
Departments
Initiatives
Open Government
About
Login / Register
Home
/
Property & Tax Records
/
Property Records
/
Property & Tax Search
/
Parcel Profile
/
Print View
Search for Another Parcel
Parcel Profile
Historical Card
Sketches
Photos
Tax Map
Taxes
Print View
Print This Page
Address: 3117 SKELLIE AVE
Parcel: 50003042000300
Parcel Profile
Address
3117 | SKELLIE | AVE
Street Status
PAVED | SIDEWALK
School District
IROQUOIS SCHOOL
Acreage
0.1044
Classification
R
Land Use Code
SINGLE FAMILY
Legal Description
3117 SKELLIE AVE 42X108.3
Square Feet
1144
Topo
LEVEL
Utility
ALL PUBLIC
Zoning
Please contact your municipal zoning officer
Deed Book
0670
Deed Page
1274
2026 Tax Values
Land Value / Taxable
15,000 / 15,000.00
Building Value / Taxable
52,060 / 52,060.00
Total Value / Taxable
67,060 / 67,060.00
Clean & Green
Inactive
Homestead Status
Active
Farmstead Status
Inactive
Lerta Amount
0
Lerta Expiration Year
0
Residential Data
Card 1
Style
OLD STYLE
Basement
FULL
Year Built
1917
Exterior Wall
ALUMINUM/VINYL
Total Living Area
1144
Full Baths
1
Half Baths
0
Fuel Type
GAS
Heating
CENTRAL
Heating System
FORCED AIR
Stories
2.0
Total Bedrooms
3
Total Family Rooms
0
Total Rooms
6
Fireplaces
0
Other Buildings & Yards
No OBY Data Found
Sales History
Sale Date
Type
Price
Book / Page
Other Info
10/27/1999
LAND & BUILDING
63000
0670 / 1274
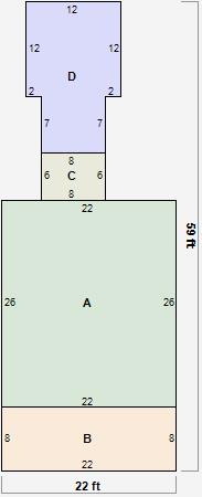
Parcel Sketches
Residential Card 1
A
MAIN
572 square feet
B
OFP OPEN FRAME PORCH
176 square feet
C
EFP ENCL FRAME PORCH
48 square feet
D
WDDCK WOOD DECKS
200 square feet
Parcel Images
Please note:
this tab is for informational purposes only and may not show all delinquencies, see the Taxes tab for more accurate delinquent taxes due.