Elected Officials
Courts
Departments
Initiatives
Open Government
About
Login / Register
Home
/
Property & Tax Records
/
Property Records
/
Property & Tax Search
/
Parcel Profile
/
Print View
Search for Another Parcel
Parcel Profile
Historical Card
Sketches
Photos
Tax Map
Taxes
Print View
Print This Page
Address: 2407 BIRD DR
Parcel: 50004026003300
Parcel Profile
Address
2407 | BIRD | DR
Street Status
PAVED | SIDEWALK
School District
IROQUOIS SCHOOL
Acreage
0.1933
Classification
R
Land Use Code
SINGLE FAMILY
Legal Description
2407 BIRD DR 48.38X174.13
Square Feet
1235
Topo
LEVEL
Utility
ALL PUBLIC
Zoning
Please contact your municipal zoning officer
Deed Book
2013
Deed Page
016323
2026 Tax Values
Land Value / Taxable
16,600 / 16,600.00
Building Value / Taxable
60,180 / 60,180.00
Total Value / Taxable
76,780 / 76,780.00
Clean & Green
Inactive
Homestead Status
Active
Farmstead Status
Inactive
Lerta Amount
0
Lerta Expiration Year
0
Residential Data
Card 1
Style
BUNGALOW
Basement
FULL
Year Built
1930
Exterior Wall
ALUMINUM/VINYL
Total Living Area
1235
Full Baths
2
Half Baths
0
Fuel Type
GAS
Heating
CENTRAL
Heating System
FORCED AIR
Stories
1.0
Total Bedrooms
4
Total Family Rooms
0
Total Rooms
6
Fireplaces
0
Other Buildings & Yards
Description
Built
Width
Length
Area
FRAME OR CB DETACHED GARAGE
1923
10
20
200
Sales History
Sale Date
Type
Price
Book / Page
Other Info
6/26/2013
LAND & BUILDING
75000
2013 / 016323
DEED
9/11/1981
0
1432 / 0581
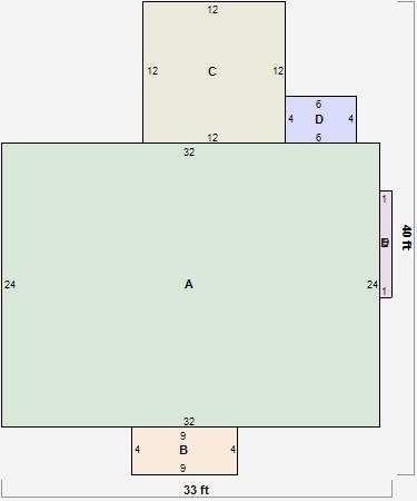
Parcel Sketches
Residential Card 1
A
MAIN
768 square feet
B
1S FR ONE STORY FRAME
36 square feet
C
WDDCK WOOD DECKS
144 square feet
D
OFP OPEN FRAME PORCH
24 square feet
E
FRBAY FRAME BAY
9 square feet
Parcel Images
Please note:
this tab is for informational purposes only and may not show all delinquencies, see the Taxes tab for more accurate delinquent taxes due.