Elected Officials
Courts
Departments
Initiatives
Open Government
About
Login / Register
Home
/
Property & Tax Records
/
Property Records
/
Property & Tax Search
/
Parcel Profile
/
Print View
Search for Another Parcel
Parcel Profile
Historical Card
Sketches
Photos
Tax Map
Taxes
Print View
Print This Page
Address: 2202 TAGGERT ST
Parcel: 50004028000200
Parcel Profile
Address
2202 | TAGGERT | ST
Street Status
PAVED | SIDEWALK
School District
IROQUOIS SCHOOL
Acreage
0.1090
Classification
R
Land Use Code
SINGLE FAMILY
Legal Description
2202 TAGGERT ST 44.4X112.5
Square Feet
1678
Topo
LEVEL
Utility
ALL PUBLIC
Zoning
Please contact your municipal zoning officer
Deed Book
2020
Deed Page
007477
2026 Tax Values
Land Value / Taxable
15,100 / 15,100.00
Building Value / Taxable
63,600 / 63,600.00
Total Value / Taxable
78,700 / 78,700.00
Clean & Green
Inactive
Homestead Status
Inactive
Farmstead Status
Inactive
Lerta Amount
0
Lerta Expiration Year
0
Residential Data
Card 1
Style
OLD STYLE
Basement
FULL
Year Built
1920
Exterior Wall
COMPOSITION
Total Living Area
1678
Full Baths
1
Half Baths
1
Fuel Type
ELECTRIC
Heating
NON CENTRAL
Heating System
ELECTRIC
Stories
2.0
Total Bedrooms
3
Total Family Rooms
0
Total Rooms
7
Fireplaces
0
Other Buildings & Yards
Description
Built
Width
Length
Area
FRAME OR CB DETACHED GARAGE
1966
24
15
360
Sales History
Sale Date
Type
Price
Book / Page
Other Info
4/29/2020
LAND & BUILDING
106000
2020 / 007477
SPECIAL WARRANTY DEED
3/19/2014
LAND & BUILDING
70000
2014 / 004751
DEED
9/15/1967
0
0969 / 0026
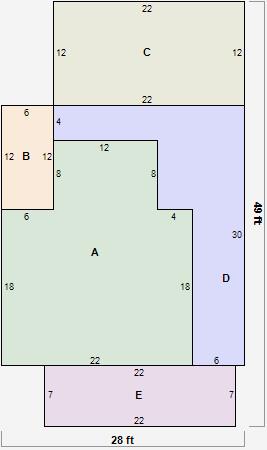
Parcel Sketches
Residential Card 1
A
MAIN
492 square feet
B
EFP ENCL FRAME PORCH
72 square feet
C
1S FR ONE STORY FRAME
264 square feet
D
UNFIN BSMT BASEMENT UNFINISHED 1S FR ONE STORY FRAME
276 square feet
E
1S FR ONE STORY FRAME
154 square feet
Parcel Images
Please note:
this tab is for informational purposes only and may not show all delinquencies, see the Taxes tab for more accurate delinquent taxes due.