Elected Officials
Courts
Departments
Initiatives
Open Government
About
Login / Register
Home
/
Property & Tax Records
/
Property Records
/
Property & Tax Search
/
Parcel Profile
/
Print View
Search for Another Parcel
Parcel Profile
Historical Card
Sketches
Photos
Tax Map
Taxes
Print View
Print This Page
Address: 2215 EASTERN AVE
Parcel: 50004028004700
Parcel Profile
Address
2215 | EASTERN | AVE
Street Status
PAVED | SIDEWALK
School District
IROQUOIS SCHOOL
Acreage
0.2094
Classification
R
Land Use Code
SINGLE FAMILY
Legal Description
2215 EASTERN AVE 76X120
Square Feet
1415
Topo
LEVEL
Utility
ALL PUBLIC
Zoning
Please contact your municipal zoning officer
Deed Book
0239
Deed Page
0209
2026 Tax Values
Land Value / Taxable
16,900 / 16,900.00
Building Value / Taxable
65,990 / 65,990.00
Total Value / Taxable
82,890 / 82,890.00
Clean & Green
Inactive
Homestead Status
Active
Farmstead Status
Inactive
Lerta Amount
0
Lerta Expiration Year
0
Residential Data
Card 1
Style
CAPE
Basement
FULL
Year Built
1951
Exterior Wall
ALUMINUM/VINYL
Total Living Area
1415
Full Baths
1
Half Baths
0
Fuel Type
GAS
Heating
CENTRAL
Heating System
FORCED AIR
Stories
1.0
Total Bedrooms
3
Total Family Rooms
0
Total Rooms
6
Fireplaces
0
Other Buildings & Yards
Description
Built
Width
Length
Area
FRAME OR CB DETACHED GARAGE
1951
20
21
420
Sales History
Sale Date
Type
Price
Book / Page
Other Info
11/6/1992
0
0239 / 0209
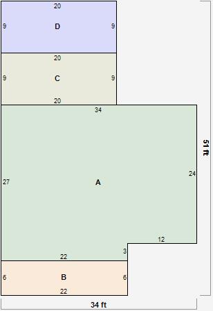
Parcel Sketches
Residential Card 1
A
MAIN
882 square feet
B
OFP OPEN FRAME PORCH
132 square feet
C
1S FR ONE STORY FRAME
180 square feet
D
WDDCK WOOD DECKS
180 square feet
Parcel Images
Please note:
this tab is for informational purposes only and may not show all delinquencies, see the Taxes tab for more accurate delinquent taxes due.