Elected Officials
Courts
Departments
Initiatives
Open Government
About
Login / Register
Home
/
Property & Tax Records
/
Property Records
/
Property & Tax Search
/
Parcel Profile
/
Print View
Search for Another Parcel
Parcel Profile
Historical Card
Sketches
Photos
Tax Map
Taxes
Print View
Print This Page
Address: 3019 WOODLAWN AVE
Parcel: 50004052002200
Parcel Profile
Address
3019 | WOODLAWN | AVE
Street Status
PAVED | SIDEWALK
School District
IROQUOIS SCHOOL
Acreage
0.1351
Classification
R
Land Use Code
SINGLE FAMILY
Legal Description
3019 WOODLAWN AVE 44X124.3IRR
Square Feet
1208
Topo
LEVEL
Utility
ALL PUBLIC
Zoning
Please contact your municipal zoning officer
Deed Book
0802
Deed Page
0204
2026 Tax Values
Land Value / Taxable
15,600 / 15,600.00
Building Value / Taxable
60,280 / 60,280.00
Total Value / Taxable
75,880 / 75,880.00
Clean & Green
Inactive
Homestead Status
Inactive
Farmstead Status
Inactive
Lerta Amount
0
Lerta Expiration Year
0
Residential Data
Card 1
Style
CONVENTIONAL
Basement
FULL
Year Built
1938
Exterior Wall
BRICK
Total Living Area
1208
Full Baths
1
Half Baths
0
Fuel Type
GAS
Heating
CENTRAL A/C
Heating System
FORCED AIR
Stories
2.0
Total Bedrooms
3
Total Family Rooms
0
Total Rooms
6
Fireplaces
0
Other Buildings & Yards
Description
Built
Width
Length
Area
FRAME OR CB DETACHED GARAGE
1938
12
20
240
Sales History
Sale Date
Type
Price
Book / Page
Other Info
8/17/2001
0
0802 / 0204
10/27/2000
LAND & BUILDING
55300
734 / 1548
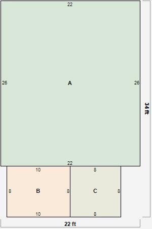
Parcel Sketches
Residential Card 1
A
MAIN
572 square feet
B
UNFIN BSMT BASEMENT UNFINISHED EMP ENCL MASONRY PORCH
80 square feet
C
UNFIN BSMT BASEMENT UNFINISHED 1S FR ONE STORY FRAME
64 square feet
Parcel Images
Please note:
this tab is for informational purposes only and may not show all delinquencies, see the Taxes tab for more accurate delinquent taxes due.