Elected Officials
Courts
Departments
Initiatives
Open Government
About
Login / Register
Home
/
Property & Tax Records
/
Property Records
/
Property & Tax Search
/
Parcel Profile
/
Print View
Search for Another Parcel
Parcel Profile
Historical Card
Sketches
Photos
Tax Map
Taxes
Print View
Print This Page
Address: 2714 EUCLID BLVD
Parcel: 50004053001000
Parcel Profile
Address
2714 | EUCLID | BLVD
Street Status
PAVED | SIDEWALK
School District
IROQUOIS SCHOOL
Acreage
0.1281
Classification
R
Land Use Code
SINGLE FAMILY
Legal Description
2714 EUCLID BLVD 45X124
Square Feet
991
Topo
LEVEL
Utility
ALL PUBLIC
Zoning
Please contact your municipal zoning officer
Deed Book
2011
Deed Page
025745
2026 Tax Values
Land Value / Taxable
15,400 / 15,400.00
Building Value / Taxable
62,050 / 62,050.00
Total Value / Taxable
77,450 / 77,450.00
Clean & Green
Inactive
Homestead Status
Active
Farmstead Status
Inactive
Lerta Amount
0
Lerta Expiration Year
0
Residential Data
Card 1
Style
BUNGALOW
Basement
FULL
Year Built
1950
Exterior Wall
FRAME
Total Living Area
991
Full Baths
1
Half Baths
0
Fuel Type
GAS
Heating
CENTRAL
Heating System
FORCED AIR
Stories
1.0
Total Bedrooms
3
Total Family Rooms
0
Total Rooms
6
Fireplaces
0
Other Buildings & Yards
Description
Built
Width
Length
Area
FRAME OR CB DETACHED GARAGE
1950
14
20
280
Sales History
Sale Date
Type
Price
Book / Page
Other Info
10/27/2011
LAND & BUILDING
79000
2011 / 025745
SPECIAL WARRANTY DEED
5/11/2005
LAND & BUILDING
0
1232 / 1754
QUIT CLAIM DEED
3/29/2001
0
0761 / 1896
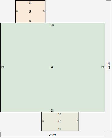
Parcel Sketches
Residential Card 1
A
MAIN
672 square feet
B
EFP ENCL FRAME PORCH
48 square feet
C
1S FR ONE STORY FRAME
50 square feet
Parcel Images
Please note:
this tab is for informational purposes only and may not show all delinquencies, see the Taxes tab for more accurate delinquent taxes due.