Elected Officials
Courts
Departments
Initiatives
Open Government
About
Login / Register
Home
/
Property & Tax Records
/
Property Records
/
Property & Tax Search
/
Parcel Profile
/
Print View
Search for Another Parcel
Parcel Profile
Historical Card
Sketches
Photos
Tax Map
Taxes
Print View
Print This Page
Address: 2507 BIRD DR
Parcel: 50004053001500
Parcel Profile
Address
2507 | BIRD | DR
Street Status
PAVED | SIDEWALK
School District
IROQUOIS SCHOOL
Acreage
0.1090
Classification
R
Land Use Code
SINGLE FAMILY
Legal Description
2507 BIRD DR 38X125
Square Feet
1248
Topo
LEVEL
Utility
ALL PUBLIC
Zoning
Please contact your municipal zoning officer
Deed Book
2017
Deed Page
024931
2025 Tax Values
Land Value / Taxable
15,100 / 15,100.00
Building Value / Taxable
58,610 / 58,610.00
Total Value / Taxable
73,710 / 73,710.00
Clean & Green
Inactive
Homestead Status
Inactive
Farmstead Status
Inactive
Lerta Amount
0
Lerta Expiration Year
0
Residential Data
Card 1
Style
OLD STYLE
Basement
FULL
Year Built
1925
Exterior Wall
BRICK
Total Living Area
1248
Full Baths
1
Half Baths
0
Fuel Type
GAS
Heating
CENTRAL
Heating System
FORCED AIR
Stories
2.0
Total Bedrooms
3
Total Family Rooms
0
Total Rooms
6
Fireplaces
1
Other Buildings & Yards
Description
Built
Width
Length
Area
FRAME OR CB DETACHED GARAGE
1925
20
22
440
Sales History
Sale Date
Type
Price
Book / Page
Other Info
11/13/2017
LAND & BUILDING
59152
2017 / 024931
FIDUCIARY DEED
10/23/2013
LAND & BUILDING
0
2013 / 028040
FIDUCIARY DEED
6/9/1994
0
0339 / 0737
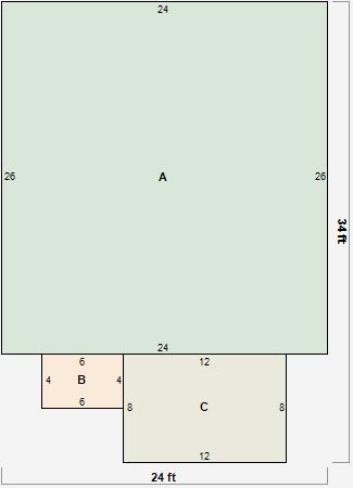
Parcel Sketches
Residential Card 1
A
MAIN
624 square feet
B
EMP ENCL MASONRY PORCH
24 square feet
C
EMP ENCL MASONRY PORCH
96 square feet
Parcel Images