Elected Officials
Courts
Departments
Initiatives
Open Government
About
Login / Register
Home
/
Property & Tax Records
/
Property Records
/
Property & Tax Search
/
Parcel Profile
/
Sketches
Search for Another Parcel
Parcel Profile
Historical Card
Sketches
Photos
Tax Map
Taxes
Print View
Address: 146 N MAIN ST
Parcel: 01001001000400
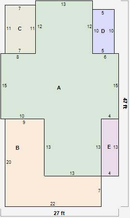
Parcel Sketches
Residential Card 1
A
MAIN
730 square feet
B
OFP OPEN FRAME PORCH
271 square feet
C
1S FR ONE STORY FRAME
77 square feet
D
1S FR ONE STORY FRAME
50 square feet
E
1S FR ONE STORY FRAME
52 square feet