Elected Officials
Courts
Departments
Initiatives
Open Government
About
Login / Register
Home
/
Property & Tax Records
/
Property Records
/
Property & Tax Search
/
Parcel Profile
/
Sketches
Search for Another Parcel
Parcel Profile
Historical Card
Sketches
Photos
Tax Map
Taxes
Print View
Address: 20 DEER ST
Parcel: 01002011000300
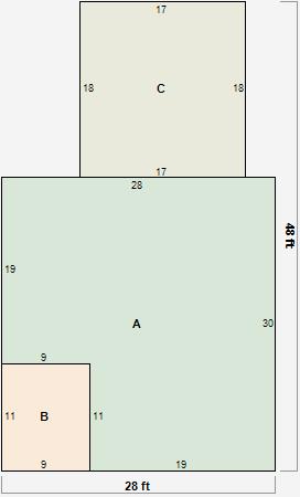
Parcel Sketches
Residential Card 1
A
MAIN
741 square feet
B
EFP ENCL FRAME PORCH
99 square feet
C
MA_PT CONC/MAS PATIO
306 square feet