Elected Officials
Courts
Departments
Initiatives
Open Government
About
Login / Register
Home
/
Property & Tax Records
/
Property Records
/
Property & Tax Search
/
Parcel Profile
/
Sketches
Search for Another Parcel
Parcel Profile
Historical Card
Sketches
Photos
Tax Map
Taxes
Print View
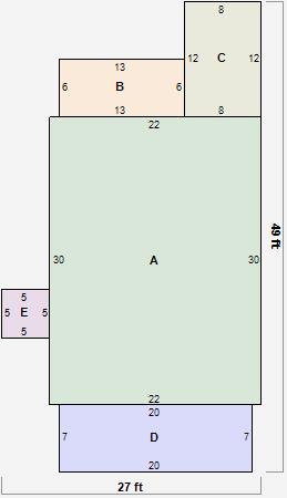
Address: 28 3RD AVE
Parcel: 01003035000400
Parcel Sketches
Residential Card 1
A
MAIN
660 square feet
B
1S FR ONE STORY FRAME
78 square feet
C
OFP OPEN FRAME PORCH
96 square feet
D
OFP OPEN FRAME PORCH
140 square feet
E
CANPY CANOPY
25 square feet