Elected Officials
Courts
Departments
Initiatives
Open Government
About
Login / Register
Home
/
Property & Tax Records
/
Property Records
/
Property & Tax Search
/
Parcel Profile
/
Sketches
Search for Another Parcel
Parcel Profile
Historical Card
Sketches
Photos
Tax Map
Taxes
Print View
Address: 73 N MAIN ST
Parcel: 01004018000100
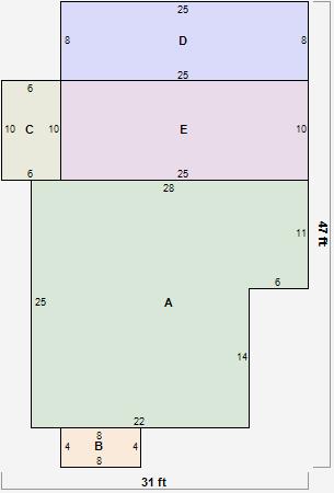
Parcel Sketches
Residential Card 1
A
MAIN
616 square feet
B
OFP OPEN FRAME PORCH
32 square feet
C
WDDCK WOOD DECKS
60 square feet
D
UNFIN BSMT BASEMENT UNFINISHED 1S FR ONE STORY FRAME
200 square feet
E
UNFIN BSMT BASEMENT UNFINISHED 1S FR ONE STORY FRAME
250 square feet