Elected Officials
Courts
Departments
Initiatives
Open Government
About
Login / Register
Home
/
Property & Tax Records
/
Property Records
/
Property & Tax Search
/
Parcel Profile
/
Sketches
Search for Another Parcel
Parcel Profile
Historical Card
Sketches
Photos
Tax Map
Taxes
Print View
Address: 38 MARKET ST
Parcel: 01004019000300
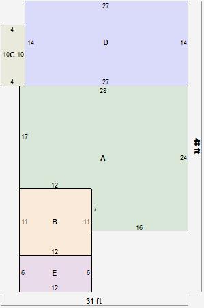
Parcel Sketches
Residential Card 1
A
MAIN
588 square feet
B
EFP ENCL FRAME PORCH
132 square feet
C
WDDCK WOOD DECKS
40 square feet
D
1S FR ONE STORY FRAME AT FN ATTIC-FINISHED
378 square feet
E
WDDCK WOOD DECKS
72 square feet