Elected Officials
Courts
Departments
Initiatives
Open Government
About
Login / Register
Home
/
Property & Tax Records
/
Property Records
/
Property & Tax Search
/
Parcel Profile
/
Sketches
Search for Another Parcel
Parcel Profile
Historical Card
Sketches
Photos
Tax Map
Taxes
Print View
Address: 35 JACKSON AVE
Parcel: 01005045001500
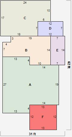
Parcel Sketches
Residential Card 1
A
MAIN
617 square feet
B
1S FR ONE STORY FRAME
258 square feet
C
MA_PT CONC/MAS PATIO
366 square feet
D
WDDCK WOOD DECKS
84 square feet
E
1S FR ONE STORY FRAME
98 square feet
F
EFP ENCL FRAME PORCH
156 square feet