Elected Officials
Courts
Departments
Initiatives
Open Government
About
Login / Register
Home
/
Property & Tax Records
/
Property Records
/
Property & Tax Search
/
Parcel Profile
/
Sketches
Search for Another Parcel
Parcel Profile
Historical Card
Sketches
Photos
Tax Map
Taxes
Print View
Address: 20 CLIFF ST
Parcel: 01005046000400
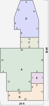
Parcel Sketches
Residential Card 1
A
MAIN
640 square feet
B
OFP OPEN FRAME PORCH
178 square feet
C
OFP OPEN FRAME PORCH
84 square feet
D
WDDCK WOOD DECKS
316 square feet
E
UNFIN BSMT BASEMENT UNFINISHED 1S FR ONE STORY FRAME
56 square feet