Elected Officials
Courts
Departments
Initiatives
Open Government
About
Login / Register
Home
/
Property & Tax Records
/
Property Records
/
Property & Tax Search
/
Parcel Profile
/
Sketches
Search for Another Parcel
Parcel Profile
Historical Card
Sketches
Photos
Tax Map
Taxes
Print View
Address: 122 W STATE ST
Parcel: 01005048000700
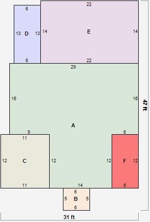
Parcel Sketches
Residential Card 1
A
MAIN
632 square feet
B
OFP OPEN FRAME PORCH
30 square feet
C
1S FR ONE STORY FRAME
132 square feet
D
EFP ENCL FRAME PORCH
78 square feet
E
1S FR ONE STORY FRAME 1/2FR FRAME HALF-STORY
308 square feet
F
1S FR ONE STORY FRAME
72 square feet