Elected Officials
Courts
Departments
Initiatives
Open Government
About
Login / Register
Home
/
Property & Tax Records
/
Property Records
/
Property & Tax Search
/
Parcel Profile
/
Sketches
Search for Another Parcel
Parcel Profile
Historical Card
Sketches
Photos
Tax Map
Taxes
Print View
Address: 8026 WATTSBURG RD
Parcel: 02009016002200
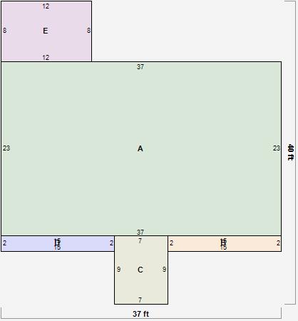
Parcel Sketches
Residential Card 1
A
MAIN
851 square feet
B
FROVR FRAME OVERHANG
30 square feet
C
WDDCK WOOD DECKS
63 square feet
D
FROVR FRAME OVERHANG
30 square feet
E
FR UT FRAME UTILITY BUILDING 1S FR ONE STORY FRAME
96 square feet