Elected Officials
Courts
Departments
Initiatives
Open Government
About
Login / Register
Home
/
Property & Tax Records
/
Property Records
/
Property & Tax Search
/
Parcel Profile
/
Sketches
Search for Another Parcel
Parcel Profile
Historical Card
Sketches
Photos
Tax Map
Taxes
Print View
Address: 20002 SPARTANSBURG HWY
Parcel: 03004008002400
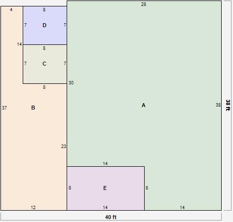
Parcel Sketches
Residential Card 1
A
MAIN
952 square feet
B
WDDCK WOOD DECKS
332 square feet
C
EFP ENCL FRAME PORCH
56 square feet
D
OFP OPEN FRAME PORCH
56 square feet
E
OFP OPEN FRAME PORCH
112 square feet