Elected Officials
Courts
Departments
Initiatives
Open Government
About
Login / Register
Home
/
Property & Tax Records
/
Property Records
/
Property & Tax Search
/
Parcel Profile
/
Sketches
Search for Another Parcel
Parcel Profile
Historical Card
Sketches
Photos
Tax Map
Taxes
Print View
Address: 19251 ROUTE 89
Parcel: 03005016002101
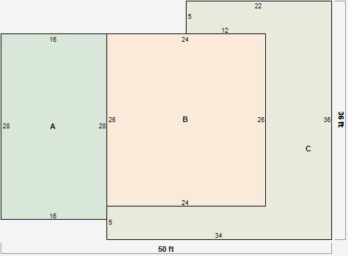
Parcel Sketches
Residential Card 1
A
MAIN
448 square feet
B
1S FR ONE STORY FRAME
624 square feet
C
WDDCK WOOD DECKS
540 square feet