Elected Officials
Courts
Departments
Initiatives
Open Government
About
Login / Register
Home
/
Property & Tax Records
/
Property Records
/
Property & Tax Search
/
Parcel Profile
/
Sketches
Search for Another Parcel
Parcel Profile
Historical Card
Sketches
Photos
Tax Map
Taxes
Print View
Address: 12200 NANCY HILL RD
Parcel: 03006017001700
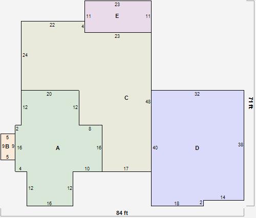
Parcel Sketches
Residential Card 1
A
MAIN
912 square feet
B
UNFIN BSMT BASEMENT UNFINISHED MABAY MASONRY BAY
45 square feet
C
UNFIN BSMT BASEMENT UNFINISHED 1S FR ONE STORY FRAME
1560 square feet
D
FR GR FRAME GARAGE
1252 square feet
E
OFP OPEN FRAME PORCH
253 square feet