Elected Officials
Courts
Departments
Initiatives
Open Government
About
Login / Register
Home
/
Property & Tax Records
/
Property Records
/
Property & Tax Search
/
Parcel Profile
/
Sketches
Search for Another Parcel
Parcel Profile
Historical Card
Sketches
Photos
Tax Map
Taxes
Print View
Address: 19861 HAMMOND RD
Parcel: 03010015001800
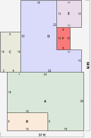
Parcel Sketches
Residential Card 1
A
MAIN
740 square feet
B
OFP OPEN FRAME PORCH
144 square feet
C
EFP ENCL FRAME PORCH
162 square feet
D
1S FR ONE STORY FRAME
622 square feet
E
EFP ENCL FRAME PORCH
132 square feet
F
OFP OPEN FRAME PORCH
60 square feet