Elected Officials
Courts
Departments
Initiatives
Open Government
About
Login / Register
Home
/
Property & Tax Records
/
Property Records
/
Property & Tax Search
/
Parcel Profile
/
Sketches
Search for Another Parcel
Parcel Profile
Historical Card
Sketches
Photos
Tax Map
Taxes
Print View
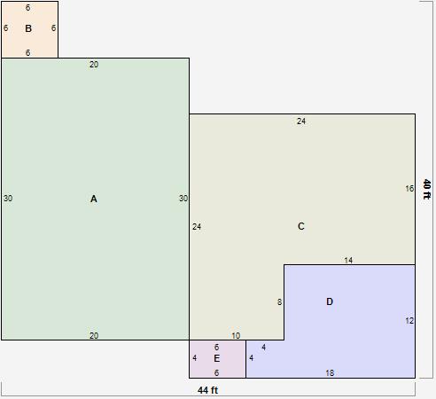
Address: 20500 LINDSEY HOLLOW RD
Parcel: 03011014001300
Parcel Sketches
Residential Card 1
A
MAIN
600 square feet
B
WDDCK WOOD DECKS
36 square feet
C
1S FR ONE STORY FRAME
464 square feet
D
WDDCK WOOD DECKS
184 square feet
E
MA STOOP/TERR MAS STOOP
24 square feet