Elected Officials
Courts
Departments
Initiatives
Open Government
About
Login / Register
Home
/
Property & Tax Records
/
Property Records
/
Property & Tax Search
/
Parcel Profile
/
Sketches
Search for Another Parcel
Parcel Profile
Historical Card
Sketches
Photos
Tax Map
Taxes
Print View
Address: 13862 W CHERRY HILL RD
Parcel: 04002002000600
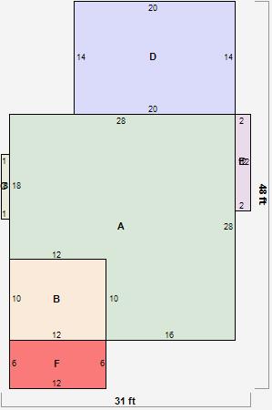
Parcel Sketches
Residential Card 1
A
MAIN
664 square feet
B
1S FR ONE STORY FRAME
120 square feet
C
FRBAY FRAME BAY
8 square feet
D
1S FR ONE STORY FRAME
280 square feet
E
FROVR FRAME OVERHANG
24 square feet
F
EFP ENCL FRAME PORCH
72 square feet