Elected Officials
Courts
Departments
Initiatives
Open Government
About
Login / Register
Home
/
Property & Tax Records
/
Property Records
/
Property & Tax Search
/
Parcel Profile
/
Sketches
Search for Another Parcel
Parcel Profile
Historical Card
Sketches
Photos
Tax Map
Taxes
Print View
Address: 8500 ROUTE 6N
Parcel: 04002003000500
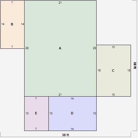
Parcel Sketches
Residential Card 1
A
MAIN
588 square feet
B
1S FR ONE STORY FRAME
98 square feet
C
MA_PT CONC/MAS PATIO
150 square feet
D
1S FR ONE STORY FRAME
140 square feet
E
EFP ENCL FRAME PORCH
70 square feet