Elected Officials
Courts
Departments
Initiatives
Open Government
About
Login / Register
Home
/
Property & Tax Records
/
Property Records
/
Property & Tax Search
/
Parcel Profile
/
Sketches
Search for Another Parcel
Parcel Profile
Historical Card
Sketches
Photos
Tax Map
Taxes
Print View
Address: 10058 BESSEMER RD
Parcel: 04007021000400
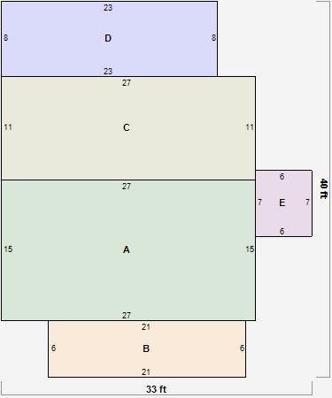
Parcel Sketches
Residential Card 1
A
MAIN
405 square feet
B
OFP OPEN FRAME PORCH
126 square feet
C
1S FR ONE STORY FRAME
297 square feet
D
1S FR ONE STORY FRAME
184 square feet
E
OFP OPEN FRAME PORCH
42 square feet